ЗВОРОТНИЙ ДЗВІНОК
Жити зараз
думати про майбутнє

Портал про нерухомість №1 в Харкові

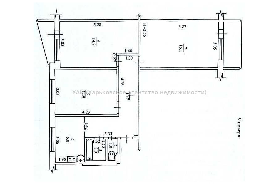
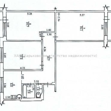
Продам квартиру, Гвардейцев Широнинцев ул. , 3 кім., 67 м², без отделочных работ

Харків, Салтовское направление, 607, Гвардейцев Широнинцев ул.
Номер оголошення: SF-3-267-922

Продам квартиру, Гвардейцев Широнинцев ул. , 3 кім., 67 м², без отделочных работ

Харків, Салтовское направление, 607, Гвардейцев Широнинцев ул.
Номер оголошення: SF-3-267-922
$45 000
≈ 1 890 000грн

Основна інформація:

3 кім.
9 поверх з 9
67 м²
Харьков
--
Без отделочных работ

Опис:

Уже виконані чорнови роботи, квартира вже підготовлена до чистового ремонту.Демонтовані стіни — більше простору та свободи планування • Повністю демонтований санвузол • Замінені труби опалення та батареї • Замінена каналізація • Повністю нова електропроводка + щиток у квартирі • Вивезене будівельне сміття (двічі)

Основные

Основные

Загальна площа : 67
Площа кухні, м² : 6
Поверх : 9
Поверхів в будинку : 9
Вид нерухомості : изолированную
Клас житла : эконом
Планировка и ремонт

Планировка и ремонт

Кількість балконів : 2
Планування : чешка
Схема кімнат : раздельная
Ремонт : без отделочных работ
Расположение

Расположение

Населений пункт : Харьков
Район міста : Салтовское направление, 607
Вулиця : Гвардейцев Широнинцев ул.
Материалы здания

Материалы здания

Матеріал стін : панель
Коммуникации

Коммуникации

Вода : центральная
Кількість санвузлів : 1
Опалення : центральное

записатися на перегляд

Для запису виберіть бажану дату і час, вкажіть Ваші контактні дані та побажання. Після з Вами зв'яжеться менеджер і погодить перегляд об'єкта. Розділи, позначені (*), обов'язкові для заповнення

Дата
Ваш запис на перегляд прийнята!

Найближчим часом з вами зв'яжется наш менеджер, і погодить дату і час
перегляду об'єкта. Гарного дня!

Щось пішло не так!

Перевірте правильність введеної інфомація. Розділи,
позначені (*), обов'язкові для заповнення

ВІДПРАВИТИ ЗАПИТ ВДРУГЕ

Інші варіанти в цьому районі

Харків, Салтовское направление, 607, Гвардейцев Широнинцев ул.
косметический ремонт
Харків, Салтовское направление, 607, Тракторостроителей просп.
без ремонта
Харків, Салтовское направление, 607, Тракторостроителей просп.
советский ремонт
Харків, Салтовское направление, 607, Тракторостроителей просп.
косметический ремонт

Харківське агентство нерухомості

Компанія ХАН займає лідируючі позиції на ринку нерухомості завдяки правильно обраній інноваційний стратегії, чітко відпрацьованим маркетингових технологій, високій якості послуг, що надаються і професійній команді експертів ринку.

Наш принцип роботи:
Краща угода - це та, після укладання якої залишається відчуття, що обидві сторони досягли бажаного і залишилися задоволені.