ОБРАТНЫЙ ЗВОНОК
Жить сейчас
думать о будущем

Портал о недвижимости №1 в Харькове

Продам квартиру, Мира ул. , 2 ком., 56 м², без внутренних работ

Харків, Роганское направление, ХТЗ, Мира ул.
Номер объявления: SF-3-166-385

Продам квартиру, Мира ул. , 2 ком., 56 м², без внутренних работ

Харків, Роганское направление, ХТЗ, Мира ул.
Номер объявления: SF-3-166-385
$30 000
≈ 1 260 000грн

Основная информация:

2 ком.
8 этаж из 9
56 м²
Харьков
Индустриальная
Без внутренних работ

Описание:

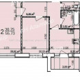
Дом сдан.Общая площадь квартиры 56 м, жилая 31, кухня 9. самая удобная односторонняя планировка . Можно перепланировать как вам удобно . Окна на запад.Возможно отделить тамбур на две квартиры с соседями . Отопление в доме уже запущено, прошёл один отопительный сезон. Можно приступать к ремонту Дом находится в пешей доступности между двумя станциями метро. « Индустриальная и « Тракторный завод» пешком 5-7 минут. Продажа по переуступке

Основные

Основные

Общая площадь : 56
Площадь кухни, м² : 9
Этаж : 8
Этажей в доме : 9
Год постройки : 2021-2025
Новострой : да
Вид недвижимости : изолированную
Класс жилья : эконом
Планировка и ремонт

Планировка и ремонт

Количество балконов : 1
Планировка : нестандартная планировка
Схема комнат : раздельная
Ремонт : без внутренних работ
Расположение

Расположение

Населенный пункт : Харьков
Район города : Роганское направление, ХТЗ
Улица : Мира ул.
До метро, мин : 15
Общественный транспорт : метро - Индустриальная (15 мин. пешком, 10 мин. на транспорте)
Расположение : спальные районы
Материалы здания

Материалы здания

Материал стен : кирпич
Коммуникации

Коммуникации

Вода : центральная
Количество санузлов : 1
Отопление : центральное
Дополнительные

Дополнительные

Ориентир : Мира, 47

записаться на просмотр

Для записи выберите желаемую дату и время, укажите Ваши контактные данные и пожелания. После с Вами свяжется менеджер и согласует просмотр объекта. Разделы, отмеченные звездочкой ( * ), обязательны для заполнения

Дата
Ваш запись на просмотр принята!

В ближайшее время с вами свяжеться наш менеджер, и согласует дату и время
просмотра объекта. Хорошего дня!

Что-то пошло не так!

Проверьте правильность введенной инфомации. Разделы,
отмеченные звездочкой ( * ), обязательны для заполнения

ОТПРАВИТЬ ЗАПРОС ПОВТОРНО

Другие варианты в этом районе

Харків, Роганское направление, ХТЗ, Мира ул.
без внутренних работ
Харків, Роганское направление, ХТЗ, Александровский просп.
авторский дизайн
Харків, Роганское направление, ХТЗ, Мира ул.
авторский дизайн
Харків, Роганское направление, ХТЗ, Библика ул.
евроремонт

Харьковское агеНТство недвижимости

Компания ХАН занимает лидирующие позиции на рынке недвижимости благодаря правильно выбранной инновационный стратегии, четко отработанным маркетинговым технологиям, высокому качеству предоставляемых услуг и профессиональной команде экспертов рынка.

Наш принцип работы:
Лучшая сделка — это та, по заключении которой остается чувство, что обе стороны достигли желаемого и остались довольны.