ОБРАТНЫЙ ЗВОНОК
Жить сейчас
думать о будущем

Портал о недвижимости №1 в Харькове

Продам квартиру, Полтавский Шлях ул. , 3 ком., 62 м², косметический ремонт

Харків, Прилегающие к центру, Центральный рынок, Полтавский Шлях ул., 22/5
Номер объявления: SF-2-937-569

Продам квартиру, Полтавский Шлях ул. , 3 ком., 62 м², косметический ремонт

Харків, Прилегающие к центру, Центральный рынок, Полтавский Шлях ул., 22/5
Номер объявления: SF-2-937-569
$47 000
≈ 1 974 000грн

Основная информация:

3 ком.
3 этаж из 3
62 м²
Харьков
Центральный рынок
Косметический ремонт

Описание:

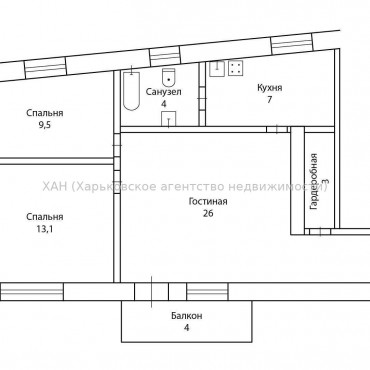
Продам 3 комнатную квартиру. Капитальный ремонт. Закрытый отремонтированный подъезд. В квартире: гостиная, 2 спальни, кухня, гардеробная, с/у совмещен, застекленный балкон. На полу деревяный паркет, плитка в кухни и с/у, высота потолков 3.60. Квартира продается с гаражом, который находится во дворе. Перепланировка узаконена, новый тех. паспорт, 2 хозяина. В пешей доступности 3 станции метро – Центральный рынок, Исторический музей, Майдан Конституции.

Основные

Основные

Общая площадь : 62
Площадь кухни, м² : 5
Этаж : 3
Этажей в доме : 3
Вид недвижимости : изолированную
Класс жилья : эконом
Планировка и ремонт

Планировка и ремонт

В т.ч. количество спален : 2
Количество балконов : 1
Планировка : нестандартная планировка
Схема комнат : раздельная
Ремонт : косметический ремонт
Расположение

Расположение

Населенный пункт : Харьков
Район города : Прилегающие к центру, Центральный рынок
Улица : Полтавский Шлях ул.
Общественный транспорт : метро - Центральный рынок
Коммуникации

Коммуникации

Вода : центральная
Газ : есть
Количество санузлов : 1
Отопление : центральное
Номер дома

Номер дома

22/5

записаться на просмотр

Для записи выберите желаемую дату и время, укажите Ваши контактные данные и пожелания. После с Вами свяжется менеджер и согласует просмотр объекта. Разделы, отмеченные звездочкой ( * ), обязательны для заполнения

Дата
Ваш запись на просмотр принята!

В ближайшее время с вами свяжеться наш менеджер, и согласует дату и время
просмотра объекта. Хорошего дня!

Что-то пошло не так!

Проверьте правильность введенной инфомации. Разделы,
отмеченные звездочкой ( * ), обязательны для заполнения

ОТПРАВИТЬ ЗАПРОС ПОВТОРНО

Другие варианты в этом районе

Харків, Прилегающие к центру, Центральный рынок, Большая Панасовская ул.
без внутренних работ
Харків, Прилегающие к центру, Центральный рынок, Большая Панасовская ул.
капитальный ремонт
Харків, Прилегающие к центру, Центральный рынок, Пискуновский пер.
капитальный ремонт
Харків, Прилегающие к центру, Центральный рынок, Пискуновский пер.
евроремонт

Харьковское агеНТство недвижимости

Компания ХАН занимает лидирующие позиции на рынке недвижимости благодаря правильно выбранной инновационный стратегии, четко отработанным маркетинговым технологиям, высокому качеству предоставляемых услуг и профессиональной команде экспертов рынка.

Наш принцип работы:
Лучшая сделка — это та, по заключении которой остается чувство, что обе стороны достигли желаемого и остались довольны.