ОБРАТНЫЙ ЗВОНОК
Жить сейчас
думать о будущем

Портал о недвижимости №1 в Харькове

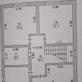
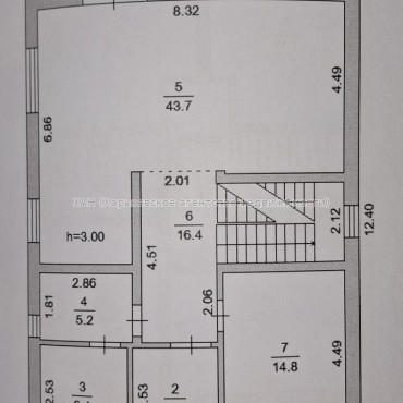
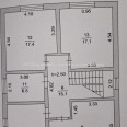
Продам дом, Свято-Ильинская ул. , 210 м², 15 сот., без внутренних работ

Високий, Свято-Ильинская ул., 93
Номер объявления: SH-223-068

Продам дом, Свято-Ильинская ул. , 210 м², 15 сот., без внутренних работ

Високий, Свято-Ильинская ул., 93
Номер объявления: SH-223-068
$80 000
≈ 3 360 000грн

Основная информация:

4 ком.
210 м²
15 сот.
Высокий, Харьковский район
--
Без внутренних работ

Описание:

Продам будинок двухповерховий з білої цегли. З великим підвалом.Підлога з підігрівом. Гарне розташування участка. Рівний. Є сусіди.

Основные

Основные

Общая площадь : 210
Жилая площадь, м² : 99
Площадь кухни, м² : 43
Этажей в доме : 2
Площадь участка : 15
Вид недвижимости : целый
Класс жилья : комфорт
Планировка и ремонт

Планировка и ремонт

В т.ч. количество спален : 3
Вид из окна : вид на город, улица
Внешняя отделка : без отделки
Высота потолков, м : 2.8
Количество балконов : 1
Ремонт : без внутренних работ
Расположение

Расположение

Населенный пункт : Высокий, Харьковский район
Улица : Свято-Ильинская ул.
Материалы здания

Материалы здания

Материал перекрытий : железобетон
Материал стен : кирпич
Теплые полы : электро
Удобства рядом

Удобства рядом

Дворовые постройки : терраса
Коммуникации

Коммуникации

Вода : центральная (только холодная)
Газ : возможность газификации
Канализация : местная
Количество санузлов : 2
Отопление : автономное
Дополнительные

Дополнительные

Охрана : видеонаблюдение
Номер дома

Номер дома

93

записаться на просмотр

Для записи выберите желаемую дату и время, укажите Ваши контактные данные и пожелания. После с Вами свяжется менеджер и согласует просмотр объекта. Разделы, отмеченные звездочкой ( * ), обязательны для заполнения

Дата
Ваш запись на просмотр принята!

В ближайшее время с вами свяжеться наш менеджер, и согласует дату и время
просмотра объекта. Хорошего дня!

Что-то пошло не так!

Проверьте правильность введенной инфомации. Разделы,
отмеченные звездочкой ( * ), обязательны для заполнения

ОТПРАВИТЬ ЗАПРОС ПОВТОРНО

Другие варианты в этом районе

Високий, Зеленогайская ул.
советский ремонт
Чайківка
без отделочных работ
Високий, Циолковского ул.
евроремонт
Васищеве, Нижняя ул.
капитальный ремонт

Харьковское агеНТство недвижимости

Компания ХАН занимает лидирующие позиции на рынке недвижимости благодаря правильно выбранной инновационный стратегии, четко отработанным маркетинговым технологиям, высокому качеству предоставляемых услуг и профессиональной команде экспертов рынка.

Наш принцип работы:
Лучшая сделка — это та, по заключении которой остается чувство, что обе стороны достигли желаемого и остались довольны.