ОБРАТНЫЙ ЗВОНОК
Жить сейчас
думать о будущем

Портал о недвижимости №1 в Харькове

Продам дом, Аравийский пер. , 102 м², 9 сот., косметический ремонт

Харків, Новожановское направление, Москалёвка, Аравийский пер.
Номер объявления: SH-021-174

Продам дом, Аравийский пер. , 102 м², 9 сот., косметический ремонт

Харків, Новожановское направление, Москалёвка, Аравийский пер.
Номер объявления: SH-021-174
$35 000
≈ 1 470 000грн

Основная информация:

4 ком.
102 м²
9 сот.
Харьков
1963
Косметический ремонт

Описание:

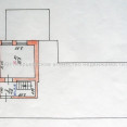
Покупатель АН не платит!Продается дом состояние жилое .коммуникации в доме минут пешком от М. Левада. 4 комнаты: две смежные (14+23 кв.м) и две раздельные (15 и 10 кв.м). Комната 10 кв. м расположена в мансарде. Кухня 10кв.м, веранда 10 кв.м. Под верандой подвал. Газ, вода в доме. Все удобства: ванная-3,6 кв.м,, туалет 1,7кв.м. В кухне установлен новый газовый котел. Есть заезд.общий двор.

Основные

Основные

Общая площадь : 102
Жилая площадь, м² : 62
Площадь кухни, м² : 10
Этажей в доме : 1
Год постройки : 1963
Площадь участка : 9
Вид недвижимости : целый
Класс жилья : эконом
Планировка и ремонт

Планировка и ремонт

В т.ч. количество спален : 3
Ремонт : косметический ремонт
Расположение

Расположение

Населенный пункт : Харьков
Район города : Новожановское направление, Москалёвка
Улица : Аравийский пер.
До метро, мин : 10
Общественный транспорт : метро - Левада (10 мин. пешком)
Материалы здания

Материалы здания

Крыша : шифер
Материал стен : кирпич
Коммуникации

Коммуникации

Вода : центральная
Газ : есть
Канализация : местная
Количество санузлов : 1
Отопление : газовое
Дополнительные

Дополнительные

Ориентир : Заиковка
an_fee_preview

an_fee_preview

Дополнительная информация

Дополнительная информация:

во дворе еще один дом на 3 соседа. двор общий.

записаться на просмотр

Для записи выберите желаемую дату и время, укажите Ваши контактные данные и пожелания. После с Вами свяжется менеджер и согласует просмотр объекта. Разделы, отмеченные звездочкой ( * ), обязательны для заполнения

Дата
Ваш запись на просмотр принята!

В ближайшее время с вами свяжеться наш менеджер, и согласует дату и время
просмотра объекта. Хорошего дня!

Что-то пошло не так!

Проверьте правильность введенной инфомации. Разделы,
отмеченные звездочкой ( * ), обязательны для заполнения

ОТПРАВИТЬ ЗАПРОС ПОВТОРНО

Другие варианты в этом районе

Харків, Новожановское направление, Москалёвка, Котляревского ул.
косметический ремонт
Харків, Новожановское направление, Москалёвка, Основянская ул.
косметический ремонт

Харьковское агеНТство недвижимости

Компания ХАН занимает лидирующие позиции на рынке недвижимости благодаря правильно выбранной инновационный стратегии, четко отработанным маркетинговым технологиям, высокому качеству предоставляемых услуг и профессиональной команде экспертов рынка.

Наш принцип работы:
Лучшая сделка — это та, по заключении которой остается чувство, что обе стороны достигли желаемого и остались довольны.