ОБРАТНЫЙ ЗВОНОК
Жить сейчас
думать о будущем

Портал о недвижимости №1 в Харькове

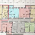
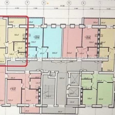
Продам квартиру, Лисаветинская ул. , 2 ком., 53 м², без внутренних работ

Харків, Прилегающие к центру, Левада, Лисаветинская ул.
Номер объявления: SF-3-301-039

Продам квартиру, Лисаветинская ул. , 2 ком., 53 м², без внутренних работ

Харків, Прилегающие к центру, Левада, Лисаветинская ул.
Номер объявления: SF-3-301-039
$45 000
≈ 1 890 000грн

Основная информация:

2 ком.
15 этаж из 16
53 м²
Харьков
Левада
Без внутренних работ

Описание:

Дві окремі кімнати. Ремонт після забудовників. До метро Гагаріна 500 метрів

Основные

Основные

Общая площадь : 53
Площадь кухни, м² : 10
Этаж : 15
Этажей в доме : 16
Год постройки : 2021-2025
Новострой : да
Вид недвижимости : изолированную
Класс жилья : комфорт
Планировка и ремонт

Планировка и ремонт

Количество балконов : 1
Планировка : нестандартная планировка
Схема комнат : раздельная
Ремонт : без внутренних работ
Расположение

Расположение

Населенный пункт : Харьков
Район города : Прилегающие к центру, Левада
Улица : Лисаветинская ул.
До метро, мин : 10
Общественный транспорт : метро - Левада (10 мин. пешком, 3 мин. на транспорте)
Расположение : центр города
Материалы здания

Материалы здания

Материал стен : кирпич
Коммуникации

Коммуникации

Вода : центральная
Количество санузлов : 1
Отопление : центральное
Дополнительные

Дополнительные

Ориентир : будинок № 10

записаться на просмотр

Для записи выберите желаемую дату и время, укажите Ваши контактные данные и пожелания. После с Вами свяжется менеджер и согласует просмотр объекта. Разделы, отмеченные звездочкой ( * ), обязательны для заполнения

Дата
Ваш запись на просмотр принята!

В ближайшее время с вами свяжеться наш менеджер, и согласует дату и время
просмотра объекта. Хорошего дня!

Что-то пошло не так!

Проверьте правильность введенной инфомации. Разделы,
отмеченные звездочкой ( * ), обязательны для заполнения

ОТПРАВИТЬ ЗАПРОС ПОВТОРНО

Другие варианты в этом районе

Харків, Прилегающие к центру, Левада, Аэрокосмический пр.
косметический ремонт
Харків, Прилегающие к центру, Левада, Лисаветинская ул.
евроремонт
Харків, Прилегающие к центру, Левада, Лисаветинская ул.
евроремонт
Харків, Прилегающие к центру, Левада, Лисаветинская ул.
евроремонт

Харьковское агеНТство недвижимости

Компания ХАН занимает лидирующие позиции на рынке недвижимости благодаря правильно выбранной инновационный стратегии, четко отработанным маркетинговым технологиям, высокому качеству предоставляемых услуг и профессиональной команде экспертов рынка.

Наш принцип работы:
Лучшая сделка — это та, по заключении которой остается чувство, что обе стороны достигли желаемого и остались довольны.