ОБРАТНЫЙ ЗВОНОК
Жить сейчас
думать о будущем

Портал о недвижимости №1 в Харькове

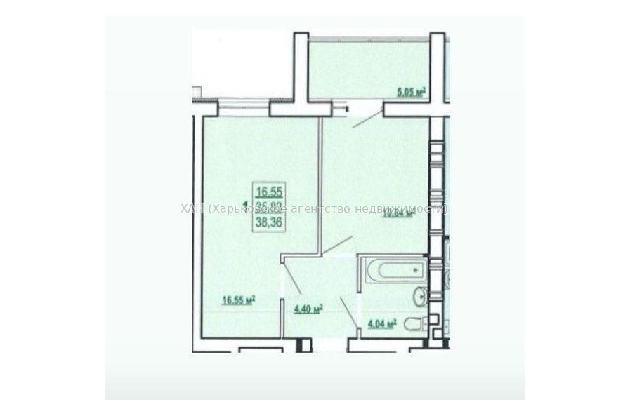
Продам квартиру, Полтавский Шлях ул. , 1 ком., 38.36 м², без внутренних работ

Харків, Холодногорское направление, Холодная Гора (Холодногорский), Полтавский Шлях ул.
Номер объявления: SF-3-301-027

Продам квартиру, Полтавский Шлях ул. , 1 ком., 38.36 м², без внутренних работ

Харків, Холодногорское направление, Холодная Гора (Холодногорский), Полтавский Шлях ул.
Номер объявления: SF-3-301-027
$23 000
≈ 966 000грн

Основная информация:

1 ком.
1 этаж из 9
38.36 м²
Харьков
Холодная гора
Без внутренних работ

Описание:

Будинок зданий. Площа 38,36 м2. Вид із вікна на внутрішній двір, великий балкон. До метро Хололно гора 8-10 хвилин.

Основные

Основные

Общая площадь : 38.36
Площадь кухни, м² : 10.84
Этаж : 1
Этажей в доме : 9
Год постройки : 2021-2025
Новострой : да
Вид недвижимости : изолированную
Класс жилья : эконом
Планировка и ремонт

Планировка и ремонт

Количество балконов : 1
Планировка : нестандартная планировка
Ремонт : без внутренних работ
Расположение

Расположение

Населенный пункт : Харьков
Район города : Холодногорское направление, Холодная Гора (Холодногорский)
Улица : Полтавский Шлях ул.
До метро, мин : 15
Общественный транспорт : метро - Холодная гора (15 мин. пешком, 5 мин. на транспорте)
Расположение : спальные районы
Материалы здания

Материалы здания

Материал стен : кирпич
Коммуникации

Коммуникации

Вода : центральная
Количество санузлов : 1
Отопление : центральное

записаться на просмотр

Для записи выберите желаемую дату и время, укажите Ваши контактные данные и пожелания. После с Вами свяжется менеджер и согласует просмотр объекта. Разделы, отмеченные звездочкой ( * ), обязательны для заполнения

Дата
Ваш запись на просмотр принята!

В ближайшее время с вами свяжеться наш менеджер, и согласует дату и время
просмотра объекта. Хорошего дня!

Что-то пошло не так!

Проверьте правильность введенной инфомации. Разделы,
отмеченные звездочкой ( * ), обязательны для заполнения

ОТПРАВИТЬ ЗАПРОС ПОВТОРНО

Другие варианты в этом районе

Харків, Холодногорское направление, Холодная Гора (Холодногорский), Чередниченковский пер.
косметический ремонт
Харків, Холодногорское направление, Холодная Гора (Холодногорский), Полтавский Шлях ул.
без внутренних работ
Харків, Холодногорское направление, Холодная Гора (Холодногорский), Александра Лавренко ул.
капитальный ремонт
Харків, Холодногорское направление, Холодная Гора (Холодногорский), Волонтерская ул.
авторский дизайн

Харьковское агеНТство недвижимости

Компания ХАН занимает лидирующие позиции на рынке недвижимости благодаря правильно выбранной инновационный стратегии, четко отработанным маркетинговым технологиям, высокому качеству предоставляемых услуг и профессиональной команде экспертов рынка.

Наш принцип работы:
Лучшая сделка — это та, по заключении которой остается чувство, что обе стороны достигли желаемого и остались довольны.