ОБРАТНЫЙ ЗВОНОК
Жить сейчас
думать о будущем

Портал о недвижимости №1 в Харькове

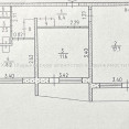
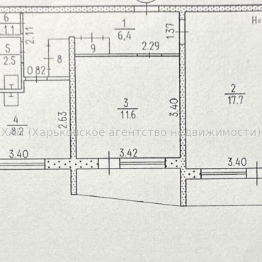
Продам квартиру, Клочковская ул. , 2 ком., 51 м², капитальный ремонт

Харків, Центральные районы, Сосновая горка, Клочковская ул.
Номер объявления: SF-3-299-038

Продам квартиру, Клочковская ул. , 2 ком., 51 м², капитальный ремонт

Харків, Центральные районы, Сосновая горка, Клочковская ул.
Номер объявления: SF-3-299-038
$56 000
≈ 2 352 000грн

Основная информация:

2 ком.
10 этаж из 16
51 м²
Харьков
--
Капитальный ремонт

Описание:

Продам 2-кімнатну квартиру з євроремонтом . Виконано капітальний ремонт із повною заміною всіх комунікацій, включно з радіаторами опалення. Стан можна одразу заїжджати та жити. Переваги: Дві лоджії Суміжний санвузол з ванною Встановлені лічильники на воду Централізоване опалення та водопостачання Газ, електрика, центральна каналізація кондиціонер Встановлена охоронна сигналізація Комплектація: Квартира повністю укомплектована меблями та технікою. Кухня обладнана меблями з вбудован посудомийною машиною та технікой. Будинок: Нові ліфти: вантажний та пасажирський Зручне розташування район вул. Космічної, за Fat Goose Pub Інфраструктура: Поруч супермаркети Восторг, Le Silpo, АТБ Магазини, кафе, усе необхідне для комфортного життя До метро Наукова 12 хвилин пішки До Восторга та АТБ (вул. Клочківська) близько 10 хвилин Додатково: Кабельне ТБ Швидкісний інтернет Розглядається продаж за сертифікатом. Квартира готова до угоди.

Основные

Основные

Общая площадь : 51
Жилая площадь, м² : 29
Площадь кухни, м² : 8
Этаж : 10
Этажей в доме : 16
Вид недвижимости : изолированную
Класс жилья : эконом
Планировка и ремонт

Планировка и ремонт

Планировка : 16-ти этажка
Ремонт : капитальный ремонт
Расположение

Расположение

Населенный пункт : Харьков
Район города : Центральные районы, Сосновая горка
Улица : Клочковская ул.
Материалы здания

Материалы здания

Материал стен : панель
Коммуникации

Коммуникации

Вода : центральная
Отопление : центральное

записаться на просмотр

Для записи выберите желаемую дату и время, укажите Ваши контактные данные и пожелания. После с Вами свяжется менеджер и согласует просмотр объекта. Разделы, отмеченные звездочкой ( * ), обязательны для заполнения

Дата
Ваш запись на просмотр принята!

В ближайшее время с вами свяжеться наш менеджер, и согласует дату и время
просмотра объекта. Хорошего дня!

Что-то пошло не так!

Проверьте правильность введенной инфомации. Разделы,
отмеченные звездочкой ( * ), обязательны для заполнения

ОТПРАВИТЬ ЗАПРОС ПОВТОРНО

Другие варианты в этом районе

Харків, Центральные районы, Сосновая горка, Европейская ул.
косметический ремонт
Харків, Центральные районы, Сосновая горка, Клочковская ул.
капитальный ремонт
Харків, Центральные районы, Сосновая горка, Европейская ул.
авторский дизайн
Харків, Центральные районы, Сосновая горка, Клочковская ул.
косметический ремонт

Харьковское агеНТство недвижимости

Компания ХАН занимает лидирующие позиции на рынке недвижимости благодаря правильно выбранной инновационный стратегии, четко отработанным маркетинговым технологиям, высокому качеству предоставляемых услуг и профессиональной команде экспертов рынка.

Наш принцип работы:
Лучшая сделка — это та, по заключении которой остается чувство, что обе стороны достигли желаемого и остались довольны.