ОБРАТНЫЙ ЗВОНОК
Жить сейчас
думать о будущем

Портал о недвижимости №1 в Харькове

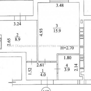
Продам квартиру, Шевченко ул. , 1 ком., 37 м², без отделочных работ

Харків, Салтовское направление, Журавлёвка, Шевченко ул.
Номер объявления: SF-3-297-350

Продам квартиру, Шевченко ул. , 1 ком., 37 м², без отделочных работ

Харків, Салтовское направление, Журавлёвка, Шевченко ул.
Номер объявления: SF-3-297-350
$23 000
≈ 966 000грн

Основная информация:

1 ком.
6 этаж из 9
37 м²
Харьков
Киевская
Без отделочных работ

Описание:

Продам власну 1-кімнатну квартиру площею 37 квадратних метрів на 6 поверсі 9-поверхового будинку в ЖК «Гідропарк», що розташований по вулиці Борткевича, 13. Квартира пропонується під ваш ексклюзивний ремонт та має чудовий вид з вікон на мальовничу природу Гідропарку. В квартирі вже проведено важливе покращення: на лоджії встановлено якісні тепло- та шумоізолюючі склопакети з надійною фурнітурою, що дозволяє облаштувати повноцінний «теплий» балкон. Для контролю витрат та економії на комунальних платежах у квартирі встановлений індивідуальний лічильник тепла. Район має чудову транспортну розв’язку та розвинену інфраструктуру: поруч розташовані зупинки громадського транспорту, ринок, а безпосередньо біля будинку знаходиться річка та зона відпочинку Гідропарк для прогулянок на свіжому повітрі. Оголошення розміщено від власника, а перегляд можливий у зручний для вас час за попередньою домовленістю

Основные

Основные

Общая площадь : 37
Площадь кухни, м² : 9
Этаж : 6
Этажей в доме : 9
Год постройки : 2021-2025
Новострой : да
Вид недвижимости : изолированную
Класс жилья : эконом
Планировка и ремонт

Планировка и ремонт

Количество балконов : 1
Планировка : нестандартная планировка
Схема комнат : раздельная
Ремонт : без отделочных работ
Расположение

Расположение

Населенный пункт : Харьков
Район города : Салтовское направление, Журавлёвка
Улица : Шевченко ул.
До метро, мин : 40
Общественный транспорт : метро - Киевская (40 мин. пешком, 25 мин. на транспорте)
Расположение : спальные районы
Материалы здания

Материалы здания

Материал стен : кирпич
Коммуникации

Коммуникации

Вода : центральная
Количество санузлов : 1
Отопление : центральное
Дополнительные

Дополнительные

Ориентир : Борткевича, 13

записаться на просмотр

Для записи выберите желаемую дату и время, укажите Ваши контактные данные и пожелания. После с Вами свяжется менеджер и согласует просмотр объекта. Разделы, отмеченные звездочкой ( * ), обязательны для заполнения

Дата
Ваш запись на просмотр принята!

В ближайшее время с вами свяжеться наш менеджер, и согласует дату и время
просмотра объекта. Хорошего дня!

Что-то пошло не так!

Проверьте правильность введенной инфомации. Разделы,
отмеченные звездочкой ( * ), обязательны для заполнения

ОТПРАВИТЬ ЗАПРОС ПОВТОРНО

Другие варианты в этом районе

Харків, Салтовское направление, Журавлёвка, Борткевича ул.
без внутренних работ
Харків, Салтовское направление, Журавлёвка, Новоалександровская ул.
капитальный ремонт
Харків, Салтовское направление, Журавлёвка, Шевченко ул.
евроремонт
Харків, Салтовское направление, Журавлёвка, Новоалександровская ул.
авторский дизайн

Харьковское агеНТство недвижимости

Компания ХАН занимает лидирующие позиции на рынке недвижимости благодаря правильно выбранной инновационный стратегии, четко отработанным маркетинговым технологиям, высокому качеству предоставляемых услуг и профессиональной команде экспертов рынка.

Наш принцип работы:
Лучшая сделка — это та, по заключении которой остается чувство, что обе стороны достигли желаемого и остались довольны.