ОБРАТНЫЙ ЗВОНОК
Жить сейчас
думать о будущем

Портал о недвижимости №1 в Харькове

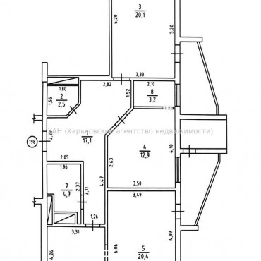
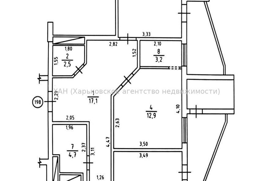
Продам квартиру, Юбилейный просп. , 3 ком., 105 м², евроремонт

Харків, Салтовское направление, 601, Юбилейный просп.
Номер объявления: SF-3-282-004

Продам квартиру, Юбилейный просп. , 3 ком., 105 м², евроремонт

Харків, Салтовское направление, 601, Юбилейный просп.
Номер объявления: SF-3-282-004
$79 900
≈ 3 355 800грн

Основная информация:

3 ком.
13 этаж из 24
105 м²
Харьков
Академика Барабашова
Евроремонт

Описание:

3к квартира у Новобудові на Салтівці з евро ремонтом преміум класу ЖК «Ювілейний» , за одресою : Проспект Ювілейний 67Б ; 601мрн 13 поверх 24 по верхового будинку з загальною площею 105 м2 У квартирі є все необхідне для комфортного життя : зроблений новий та сучасний ремонт , обладнана фірмовою меблею та технікою . Квартира з красивими краєвидами з вікна , гарними сусідами , чистими підʼїздами та як бонус додатковою кладовкою у коридорі . Все зроблено з любов’ю та душею , ремонт робили для себе , якісно та професійно.

Основные

Основные

Общая площадь : 105
Площадь кухни, м² : 35
Этаж : 13
Этажей в доме : 24
Год постройки : 2011-2015
Вид недвижимости : изолированную
Класс жилья : бизнес
Планировка и ремонт

Планировка и ремонт

Планировка : нестандартная планировка
Схема комнат : раздельная
Ремонт : евроремонт
Расположение

Расположение

Населенный пункт : Харьков
Район города : Салтовское направление, 601
Улица : Юбилейный просп.
До метро, мин : 32
Общественный транспорт : метро - Академика Барабашова (32 мин. пешком, 26 мин. на транспорте)
Расположение : спальные районы
Материалы здания

Материалы здания

Материал стен : кирпич
Коммуникации

Коммуникации

Вода : центральная
Количество санузлов : 2
Отопление : автономное

записаться на просмотр

Для записи выберите желаемую дату и время, укажите Ваши контактные данные и пожелания. После с Вами свяжется менеджер и согласует просмотр объекта. Разделы, отмеченные звездочкой ( * ), обязательны для заполнения

Дата
Ваш запись на просмотр принята!

В ближайшее время с вами свяжеться наш менеджер, и согласует дату и время
просмотра объекта. Хорошего дня!

Что-то пошло не так!

Проверьте правильность введенной инфомации. Разделы,
отмеченные звездочкой ( * ), обязательны для заполнения

ОТПРАВИТЬ ЗАПРОС ПОВТОРНО

Другие варианты в этом районе

Харків, Салтовское направление, 601, Юбилейный просп.
косметический ремонт
Харків, Салтовское направление, 601, Юбилейный просп.
косметический ремонт
Харків, Салтовское направление, 601, Салтовское шоссе
косметический ремонт
Харків, Салтовское направление, 601, Салтовское шоссе
косметический ремонт

Харьковское агеНТство недвижимости

Компания ХАН занимает лидирующие позиции на рынке недвижимости благодаря правильно выбранной инновационный стратегии, четко отработанным маркетинговым технологиям, высокому качеству предоставляемых услуг и профессиональной команде экспертов рынка.

Наш принцип работы:
Лучшая сделка — это та, по заключении которой остается чувство, что обе стороны достигли желаемого и остались довольны.