ОБРАТНЫЙ ЗВОНОК
Жить сейчас
думать о будущем

Портал о недвижимости №1 в Харькове

Продам квартиру, Лисаветинская ул. , 1 ком., 43 м², авторский дизайн

Харків, Прилегающие к центру, Левада, Лисаветинская ул.
Номер объявления: SF-3-218-302

Продам квартиру, Лисаветинская ул. , 1 ком., 43 м², авторский дизайн

Харків, Прилегающие к центру, Левада, Лисаветинская ул.
Номер объявления: SF-3-218-302
$51 800
≈ 2 175 600грн

Основная информация:

1 ком.
1 этаж из 16
43 м²
Харьков
Левада
Авторский дизайн

Описание:

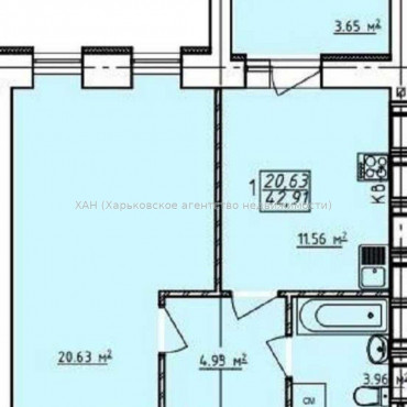
Квартира в новострое комфорт класса «ЖК Левада 2». ул. Заливная, 12. Удобный 1 этаж, 16 этажного дома, НЕ ТОРЕЦ, очень тёплая. Дом построен надежным застройщиком Трест «Жилстрой - 1». Дом кирпичный, утеплён минеральной ватой, заселен! В доме два тихоходных скоростных лифта! Коммуникации подключены. В квартире самая хорошая планировка, общая площадь 43м2, большая кухня 12м2, с выходом на лоджию. Большая комната 20.57м2, в ней два окна, выполнен качественный стильный ремонт в приятных тонах, остается вся мебель и техника, сделана качественная электрика и сантехника. Квартира очень светлая, тёплая и уютная, с хорошим видом из окон. Отличный вариант для семьи. Комплекс находит в центральной части города, в 5 минутах от метро пр. Гагарина, рядом супермаркеты, фитнес клубы. Хорошая транспортная развязка.

Основные

Основные

Общая площадь : 43
Площадь кухни, м² : 12
Этаж : 1
Этажей в доме : 16
Год постройки : 2021-2025
Новострой : да
Вид недвижимости : изолированную
Класс жилья : комфорт
Планировка и ремонт

Планировка и ремонт

Количество балконов : 1
Планировка : нестандартная планировка
Ремонт : авторский дизайн
Расположение

Расположение

Населенный пункт : Харьков
Район города : Прилегающие к центру, Левада
Улица : Лисаветинская ул.
До метро, мин : 10
Общественный транспорт : метро - Левада (10 мин. пешком, 3 мин. на транспорте)
Расположение : центр города
Материалы здания

Материалы здания

Материал стен : кирпич
Коммуникации

Коммуникации

Вода : центральная
Количество санузлов : 1
Отопление : центральное
Дополнительные

Дополнительные

Ориентир : Заливная 12

записаться на просмотр

Для записи выберите желаемую дату и время, укажите Ваши контактные данные и пожелания. После с Вами свяжется менеджер и согласует просмотр объекта. Разделы, отмеченные звездочкой ( * ), обязательны для заполнения

Дата
Ваш запись на просмотр принята!

В ближайшее время с вами свяжеться наш менеджер, и согласует дату и время
просмотра объекта. Хорошего дня!

Что-то пошло не так!

Проверьте правильность введенной инфомации. Разделы,
отмеченные звездочкой ( * ), обязательны для заполнения

ОТПРАВИТЬ ЗАПРОС ПОВТОРНО

Другие варианты в этом районе

Харків, Прилегающие к центру, Левада, Молчановский пер.
косметический ремонт
Харків, Прилегающие к центру, Левада, Аэрокосмический пр.
евроремонт
Харків, Прилегающие к центру, Левада, Лисаветинская ул.
без внутренних работ
Харків, Прилегающие к центру, Левада, Георгия Тарасенко ул.
капитальный ремонт

Харьковское агеНТство недвижимости

Компания ХАН занимает лидирующие позиции на рынке недвижимости благодаря правильно выбранной инновационный стратегии, четко отработанным маркетинговым технологиям, высокому качеству предоставляемых услуг и профессиональной команде экспертов рынка.

Наш принцип работы:
Лучшая сделка — это та, по заключении которой остается чувство, что обе стороны достигли желаемого и остались довольны.