ОБРАТНЫЙ ЗВОНОК
Жить сейчас
думать о будущем

Портал о недвижимости №1 в Харькове

Продам квартиру, Героев Харькова просп. , 2 ком., 47.60 м², капитальный ремонт

Харків, Роганское направление, Солнечный (761), Героев Харькова просп.
Номер объявления: SF-3-212-374

Продам квартиру, Героев Харькова просп. , 2 ком., 47.60 м², капитальный ремонт

Харків, Роганское направление, Солнечный (761), Героев Харькова просп.
Номер объявления: SF-3-212-374
$27 000
≈ 1 134 000грн

Основная информация:

2 ком.
9 этаж из 9
47.60 м²
Харьков
Индустриальная
Капитальный ремонт

Описание:

Продам двокімнатну квартиру з гарним ремонтом. Металопластикові вікна, балкон зі склінням, броньовані вхідні двері. Замінена електропроводка. Нова сантехніка, замінені батареї. Велика комора. Є частково меблі. Квартира вільна. Серттфікат розглядаємо. Дзвоніть.

Основные

Основные

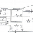
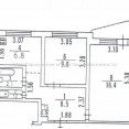
Общая площадь : 47.60
Площадь кухни, м² : 6.80
Этаж : 9
Этажей в доме : 9
Вид недвижимости : изолированную
Класс жилья : эконом
Планировка и ремонт

Планировка и ремонт

В т.ч. количество спален : 2
Количество балконов : 1
Планировка : чешка
Схема комнат : раздельная
Ремонт : капитальный ремонт
Расположение

Расположение

Населенный пункт : Харьков
Район города : Роганское направление, Солнечный (761)
Улица : Героев Харькова просп.
Общественный транспорт : метро - Индустриальная (10 мин. на транспорте)
Материалы здания

Материалы здания

Материал перекрытий : железобетон
Материал стен : панель
Коммуникации

Коммуникации

Вода : центральная
Количество санузлов : 1
Отопление : центральное

записаться на просмотр

Для записи выберите желаемую дату и время, укажите Ваши контактные данные и пожелания. После с Вами свяжется менеджер и согласует просмотр объекта. Разделы, отмеченные звездочкой ( * ), обязательны для заполнения

Дата
Ваш запись на просмотр принята!

В ближайшее время с вами свяжеться наш менеджер, и согласует дату и время
просмотра объекта. Хорошего дня!

Что-то пошло не так!

Проверьте правильность введенной инфомации. Разделы,
отмеченные звездочкой ( * ), обязательны для заполнения

ОТПРАВИТЬ ЗАПРОС ПОВТОРНО

Другие варианты в этом районе

Харків, Роганское направление, Солнечный (761), Героев Харькова просп.
частичный ремонт
Харків, Роганское направление, Солнечный (761), Героев Харькова просп.
косметический ремонт
Харків, Роганское направление, Солнечный (761), Героев Харькова просп.
без ремонта
Харків, Роганское направление, Солнечный (761), Героев Харькова просп.
капитальный ремонт

Харьковское агеНТство недвижимости

Компания ХАН занимает лидирующие позиции на рынке недвижимости благодаря правильно выбранной инновационный стратегии, четко отработанным маркетинговым технологиям, высокому качеству предоставляемых услуг и профессиональной команде экспертов рынка.

Наш принцип работы:
Лучшая сделка — это та, по заключении которой остается чувство, что обе стороны достигли желаемого и остались довольны.