ОБРАТНЫЙ ЗВОНОК
Жить сейчас
думать о будущем

Портал о недвижимости №1 в Харькове

Продам квартиру, Вальтера ул. , 3 ком., 82 м², авторский дизайн

Харків, Пятихатское направление, Пятихатки, Вальтера ул.
Номер объявления: SF-3-147-188

Продам квартиру, Вальтера ул. , 3 ком., 82 м², авторский дизайн

Харків, Пятихатское направление, Пятихатки, Вальтера ул.
Номер объявления: SF-3-147-188
$55 952
≈ 2 350 000грн

Основная информация:

3 ком.
6 этаж из 9
82 м²
Харьков
--
Авторский дизайн

Описание:

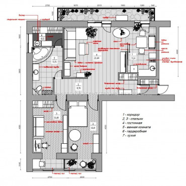
Продам 3- комн квартиру площадью 82 кв. м в кирпичном доме . Рядом с домом находится вся инфраструктура: магазины, почта, школа, детский сад, кафе, аптека и т.п. Просторная кухня- гостиная, с французскими окнами в пол и полами из дубового массив, электрокамин и большой угловой диван с с системой хранения. Кухня и гостиная отделяются друг от друга при помощи стеклянной раздвижной перегородки. Есть автономное газовое отопление. Большой красивый балкон с кованым ограждением. Также в квартире есть 2 спальни, объединенные с лоджиями. На лоджиях сделаны теплые полы и окна в пол. Изюминкой квартиры является ванная комната наполненная естественным светом от окна и большая угловая ванна. Прямо из ванной комнаты вы попадаете в гардеробную-постирочную, где есть электрический бойлер на случай отсутствия горячей воды. Помимо гардеробной в квартире предусмотренные и другие системы хранения: шкаф-купе в коридоре, шкаф в спальне, а так же - встроенные шкафы в тамбуре. Квартира продается с мебелью и бытовой техникой.Так же имеется возможность продажи гаража с подвалом, площадью 40 кв.м, в гаражном кооперативе расположенном рядом с домом

Основные

Основные

Общая площадь : 82
Площадь кухни, м² : 9
Этаж : 6
Этажей в доме : 9
Вид недвижимости : изолированную
Класс жилья : эконом
Планировка и ремонт

Планировка и ремонт

В т.ч. количество спален : 2
Количество балконов : 2
Планировка : нестандартная планировка
Схема комнат : раздельная
Ремонт : авторский дизайн
Расположение

Расположение

Населенный пункт : Харьков
Район города : Пятихатское направление, Пятихатки
Улица : Вальтера ул.
Материалы здания

Материалы здания

Материал стен : кирпич
Коммуникации

Коммуникации

Вода : центральная
Газ : есть
Количество санузлов : 1
Отопление : автономное

записаться на просмотр

Для записи выберите желаемую дату и время, укажите Ваши контактные данные и пожелания. После с Вами свяжется менеджер и согласует просмотр объекта. Разделы, отмеченные звездочкой ( * ), обязательны для заполнения

Дата
Ваш запись на просмотр принята!

В ближайшее время с вами свяжеться наш менеджер, и согласует дату и время
просмотра объекта. Хорошего дня!

Что-то пошло не так!

Проверьте правильность введенной инфомации. Разделы,
отмеченные звездочкой ( * ), обязательны для заполнения

ОТПРАВИТЬ ЗАПРОС ПОВТОРНО

Другие варианты в этом районе

Харків, Пятихатское направление, Пятихатки, Липовая ул.
косметический ремонт
Харків, Пятихатское направление, Пятихатки, Гацева ул., 1
без ремонта
Харків, Пятихатское направление, Пятихатки, Курчатова просп.
капитальный ремонт
Харків, Пятихатское направление, Пятихатки, Курчатова просп.
капитальный ремонт

Харьковское агеНТство недвижимости

Компания ХАН занимает лидирующие позиции на рынке недвижимости благодаря правильно выбранной инновационный стратегии, четко отработанным маркетинговым технологиям, высокому качеству предоставляемых услуг и профессиональной команде экспертов рынка.

Наш принцип работы:
Лучшая сделка — это та, по заключении которой остается чувство, что обе стороны достигли желаемого и остались довольны.