ОБРАТНЫЙ ЗВОНОК
Жить сейчас
думать о будущем

Портал о недвижимости №1 в Харькове

Продам квартиру, Гвардейцев Широнинцев ул. , 2 ком., 63 м², без внутренних работ

Харків, Салтовское направление, Меридиан, Гвардейцев Широнинцев ул.
Номер объявления: SF-2-922-588

Продам квартиру, Гвардейцев Широнинцев ул. , 2 ком., 63 м², без внутренних работ

Харків, Салтовское направление, Меридиан, Гвардейцев Широнинцев ул.
Номер объявления: SF-2-922-588
$42 000
≈ 1 764 000грн

Основная информация:

2 ком.
12 этаж из 13
63 м²
Харьков
Салтовская
Без внутренних работ

Описание:

Дом сдан. Можно заходить и делать ремонт. В квартире есть свет 3 фазы, вода холодная и горячая, канализация (унитаз стоит), лифты запущены, включено центральное отопление , есть консьерж и видеонаблюдение.

Основные

Основные

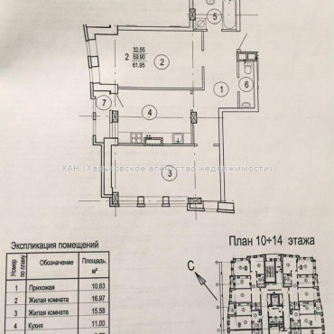
Общая площадь : 63
Площадь кухни, м² : 11
Этаж : 12
Этажей в доме : 13
Год постройки : 2021-2025
Новострой : да
Вид недвижимости : изолированную
Класс жилья : комфорт
Планировка и ремонт

Планировка и ремонт

Количество балконов : 1
Планировка : нестандартная планировка
Схема комнат : раздельная
Ремонт : без внутренних работ
Расположение

Расположение

Населенный пункт : Харьков
Район города : Салтовское направление, Меридиан
Улица : Гвардейцев Широнинцев ул.
До метро, мин : 50
Общественный транспорт : метро - Салтовская (50 мин. пешком, 18 мин. на транспорте)
Расположение : спальные районы
Материалы здания

Материалы здания

Материал стен : газоблок
Коммуникации

Коммуникации

Вода : центральная
Количество санузлов : 2
Отопление : центральное
Дополнительные

Дополнительные

Ориентир : 2- я секция

записаться на просмотр

Для записи выберите желаемую дату и время, укажите Ваши контактные данные и пожелания. После с Вами свяжется менеджер и согласует просмотр объекта. Разделы, отмеченные звездочкой ( * ), обязательны для заполнения

Дата
Ваш запись на просмотр принята!

В ближайшее время с вами свяжеться наш менеджер, и согласует дату и время
просмотра объекта. Хорошего дня!

Что-то пошло не так!

Проверьте правильность введенной инфомации. Разделы,
отмеченные звездочкой ( * ), обязательны для заполнения

ОТПРАВИТЬ ЗАПРОС ПОВТОРНО

Другие варианты в этом районе

Харків, Салтовское направление, Меридиан, Гвардейцев Широнинцев ул.
частичный ремонт
Харків, Салтовское направление, Меридиан, Гвардейцев Широнинцев ул.
без внутренних работ
Харків, Салтовское направление, Меридиан, Гвардейцев Широнинцев ул.
без отделочных работ
Харків, Салтовское направление, Меридиан, Гвардейцев Широнинцев ул.
авторский дизайн

Харьковское агеНТство недвижимости

Компания ХАН занимает лидирующие позиции на рынке недвижимости благодаря правильно выбранной инновационный стратегии, четко отработанным маркетинговым технологиям, высокому качеству предоставляемых услуг и профессиональной команде экспертов рынка.

Наш принцип работы:
Лучшая сделка — это та, по заключении которой остается чувство, что обе стороны достигли желаемого и остались довольны.