ОБРАТНЫЙ ЗВОНОК
Жить сейчас
думать о будущем

Портал о недвижимости №1 в Харькове

Продам квартиру, Дмитрия Антоненко ул. , 2 ком., 93 м², без внутренних работ

Харків, Алексеевское направление, Павлово Поле, Дмитрия Антоненко ул.
Номер объявления: SF-2-907-200

Продам квартиру, Дмитрия Антоненко ул. , 2 ком., 93 м², без внутренних работ

Харків, Алексеевское направление, Павлово Поле, Дмитрия Антоненко ул.
Номер объявления: SF-2-907-200
$91 500
≈ 3 843 000грн

Основная информация:

2 ком.
8 этаж из 17
93 м²
Харьков
Ботанический сад
Без внутренних работ

Описание:

Дом располжен с одной тороны практически в инфраструктуированном центре города, сдругой -в экологически чистом районе. Имеется подземный паркинг. У комплекса закрытая охраняемая территория. Мнолитно-каркасная технология строительства. Утепление стен - минеральная вата. Звоните!

Основные

Основные

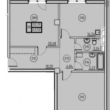
Общая площадь : 93
Жилая площадь, м² : 43.52
Площадь кухни, м² : 14.54
Этаж : 8
Этажей в доме : 17
Год постройки : 2021-2025
Новострой : да
Вид недвижимости : изолированную
Класс жилья : бизнес
Планировка и ремонт

Планировка и ремонт

Количество балконов : 1
Планировка : нестандартная планировка
Ремонт : без внутренних работ
Расположение

Расположение

Населенный пункт : Харьков
Район города : Алексеевское направление, Павлово Поле
Улица : Дмитрия Антоненко ул.
До метро, мин : 5
Общественный транспорт : метро - Ботанический сад (5 мин. пешком, 1 мин. на транспорте)
Расположение : центр города
Материалы здания

Материалы здания

Материал перекрытий : железобетон
Материал стен : монолито-каркас
Коммуникации

Коммуникации

Вода : центральная
Количество санузлов : 1
Отопление : центральное
Дополнительные

Дополнительные

Ориентир : Дмитра Антоненко, 50
Строительная компания

Строительная компания

"Констракшн Груп"

записаться на просмотр

Для записи выберите желаемую дату и время, укажите Ваши контактные данные и пожелания. После с Вами свяжется менеджер и согласует просмотр объекта. Разделы, отмеченные звездочкой ( * ), обязательны для заполнения

Дата
Ваш запись на просмотр принята!

В ближайшее время с вами свяжеться наш менеджер, и согласует дату и время
просмотра объекта. Хорошего дня!

Что-то пошло не так!

Проверьте правильность введенной инфомации. Разделы,
отмеченные звездочкой ( * ), обязательны для заполнения

ОТПРАВИТЬ ЗАПРОС ПОВТОРНО

Другие варианты в этом районе

Харків, Алексеевское направление, Павлово Поле, Шекспира ул.
капитальный ремонт
Харків, Алексеевское направление, Павлово Поле, Защитников Неба ул.
авторский дизайн
Харків, Алексеевское направление, Павлово Поле, Науки просп.
без отделочных работ
Харків, Алексеевское направление, Павлово Поле, Науки просп.
авторский дизайн

Харьковское агеНТство недвижимости

Компания ХАН занимает лидирующие позиции на рынке недвижимости благодаря правильно выбранной инновационный стратегии, четко отработанным маркетинговым технологиям, высокому качеству предоставляемых услуг и профессиональной команде экспертов рынка.

Наш принцип работы:
Лучшая сделка — это та, по заключении которой остается чувство, что обе стороны достигли желаемого и остались довольны.