ОБРАТНЫЙ ЗВОНОК
Жить сейчас
думать о будущем

Портал о недвижимости №1 в Харькове

Продам квартиру, Свободы ул. , 1 ком., 33 м², без внутренних работ

Харків, Центральные районы, Нагорный, Свободы ул.
Номер объявления: SF-2-821-996

Продам квартиру, Свободы ул. , 1 ком., 33 м², без внутренних работ

Харків, Центральные районы, Нагорный, Свободы ул.
Номер объявления: SF-2-821-996
$55 000
≈ 2 310 000грн

Основная информация:

1 ком.
6 этаж из 11
33 м²
Харьков
Ярослава Мудрого
Без внутренних работ

Описание:

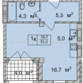
Продается квартира бизнес-класса 1-комнатная квартира площадью 33 м² без внутренних работ в ЖК «Титул». Расположение в центре города, на улице Свободы в районе Шишковка, недалеко от метро Пушкинская. Квартира с просторной кухней 17 м², на 6 этаже 11-этажного дома. Не упустите шанс стать счастливым обладателем этого уютного жилья!

Основные

Основные

Общая площадь : 33
Площадь кухни, м² : 17
Этаж : 6
Этажей в доме : 11
Год постройки : 2021-2025
Вид недвижимости : изолированную
Класс жилья : бизнес
Планировка и ремонт

Планировка и ремонт

Планировка : нестандартная планировка
Ремонт : без внутренних работ
Расположение

Расположение

Населенный пункт : Харьков
Район города : Центральные районы, Нагорный
Улица : Свободы ул.
До метро, мин : 7
Общественный транспорт : метро - Ярослава Мудрого (7 мин. пешком, 1 мин. на транспорте)
Расположение : центр города
Коммуникации

Коммуникации

Вода : центральная
Количество санузлов : 1
Отопление : центральное

записаться на просмотр

Для записи выберите желаемую дату и время, укажите Ваши контактные данные и пожелания. После с Вами свяжется менеджер и согласует просмотр объекта. Разделы, отмеченные звездочкой ( * ), обязательны для заполнения

Дата
Ваш запись на просмотр принята!

В ближайшее время с вами свяжеться наш менеджер, и согласует дату и время
просмотра объекта. Хорошего дня!

Что-то пошло не так!

Проверьте правильность введенной инфомации. Разделы,
отмеченные звездочкой ( * ), обязательны для заполнения

ОТПРАВИТЬ ЗАПРОС ПОВТОРНО

Другие варианты в этом районе

Харків, Центральные районы, Нагорный, Свободы ул.
авторский дизайн
Харків, Центральные районы, Нагорный, Тринклера ул., д. 24
косметический ремонт
Харків, Центральные районы, Нагорный, Авиационная ул.
без внутренних работ
Харків, Центральные районы, Нагорный, Ярослава Мудрого ул.
авторский дизайн

Харьковское агеНТство недвижимости

Компания ХАН занимает лидирующие позиции на рынке недвижимости благодаря правильно выбранной инновационный стратегии, четко отработанным маркетинговым технологиям, высокому качеству предоставляемых услуг и профессиональной команде экспертов рынка.

Наш принцип работы:
Лучшая сделка — это та, по заключении которой остается чувство, что обе стороны достигли желаемого и остались довольны.